MH45
Explication of premises at 0.00 mark
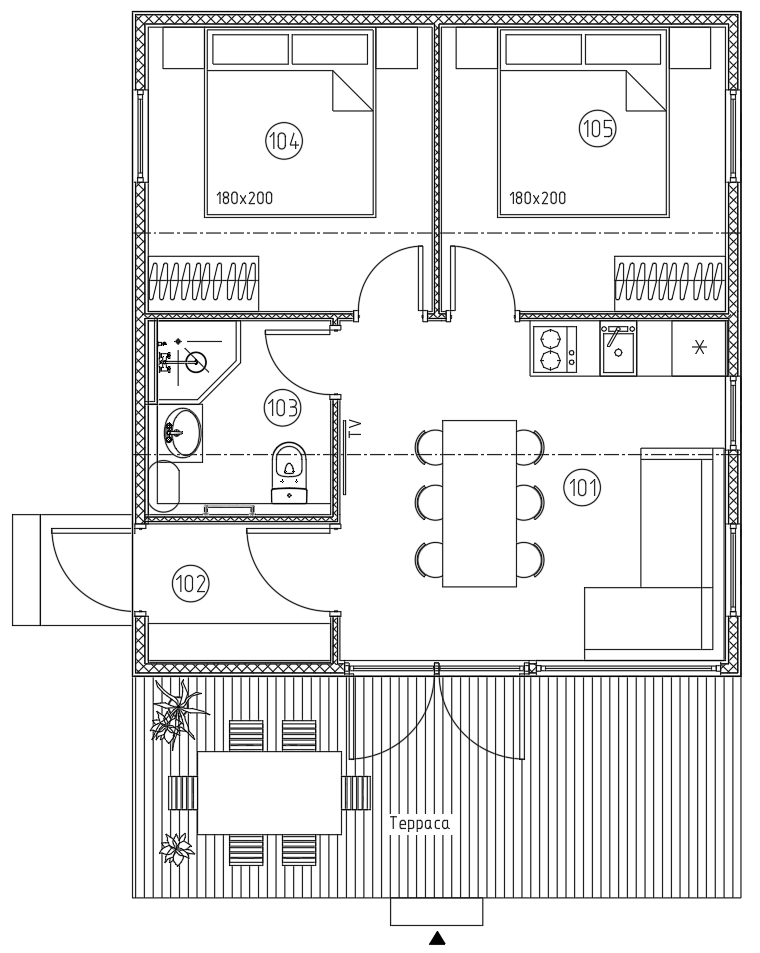
| Room number | Name | Area, m |
|---|---|---|
| 101 | Living room with kitchen | 15.4 |
| 102 | Vestibule-hallway | 2.9 |
| 103 | Bathroom | 4.2 |
| 104 | Bedroom | 9.5 |
| 105 | Bedroom | 9.5 |
| Total area of premises | 41.5 | |
| Building area* | 47.5 |
Price: from 155,000₽/sq.m. without VAT
Equipment
Waterproofing
A solid waterproofing layer is mounted on top of the roof power frame to prevent moisture from entering the building structure.
On the floor of the module, on top of the power sheathing of the foundation, a leveling coating of cement-bonded particle boards or screed is mounted and finished with moisture-resistant laminate or ceramic tiles.
Additional waterproofing is provided in damp rooms.
Thermal insulation
Walls: thermal insulation made of basalt fiber boards - 100 mm + wooden
finishing inside and outside
Roof: thermal insulation made of basalt fiber boards - 200 mm
Floors: thermal insulation made of basalt fiber boards and XPS boards - 100 mm
A windproof coating is installed under the external finishing, a vapor barrier membrane is installed under the internal finishing
Entrance group
External door unit, made of insulated PVC profiles
with double-glazed glass. With
key locking device.
Glazing
Window frames made of insulated PVC profiles, with double-glazed windows, with opening sashes.
Facade finishing
Outside the frame, external cladding is installed
from OSB3 sheet 12 mm thick, painted
with a special primer-paint and decorative finishing with wooden planks is mounted
to give an aesthetic appearance
Internal doors
Door units with door frames and fittings, with locking devices from inside the premises
Design
A modular mobile home consists of several separately transported modules.
The design of each module consists of a welded power frame, made by welding, on which an anti-corrosion coating is applied
The modules are joined together at the site of the building installation, and the building is connected to the existing communications
The modules are delivered to the site in full factory readiness
Kitchen equipment
Kitchen set with sink
Cooking stove
Microwave oven
Fridge
Water heater
Plumbing equipment
Shower cabin with tray and shower system
Sink
Toilet assembly, with microlift seat
Bathroom furniture
Mirror with backlight
Heated towel rail (electric)
Furniture
Living room: sofa, dining table, dining chairs, wardrobe
Bedroom: bed, mattress, wardrobe
All rooms have cornices and curtains
Fire safety
Fire alarms are installed
Modular mobile homes are equipped with fire extinguishing equipment - OP
Low-current systems
Hidden routes for TV and Internet cables have been installed
Electricity
Concealed installation of power supply systems
Sockets and switches installed
External and internal control panels installed
power supply
Water supply and sewerage
Concealed installation of water supply and sewerage systems
Conclusions are provided at the connection points of external
engineering systems
Cooling
Split air conditioning system with control system
Heating
Warm floors in wet areas with sensor and temperature control
Electric heating radiators with temperature control
Lighting
Internal lighting fixtures installed
Street facade lighting installed










